ケイズビル【兵庫県神戸市須磨区常盤町1丁目1-20 101-103号】
ケイズビル
APPEAL POINTアピールポイント
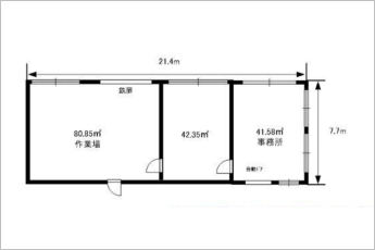
(約49.84坪)事務所付き倉庫。保証会社加入要。
- 賃料
- 31.62万円
- 共益費・管理費
- 26,950円
- 敷金
- 1ヶ月
- 保証金
- –
- 礼金
- –
- 専有面積
- 164.78㎡
- 所在地
- 神戸市須磨区常盤町1丁目1-20 101-103号
- 建物名
- ケイズビル
- 交通
- JR山陽本線「新長田」 徒歩5分
- 最寄バス停
- –
- 情報更新日:
- 2026年03月11日
- 掲載期限日:
- 2026年04月11日
「人型アイコン」を地図上にドラッグすることで『Google Street View』に切り替わります。
※地図上の「対象地」は「」の場所を指しています。実際の場所ではない場合がございます。詳しくはお問い合わせください。
物件概要
| 種目 | 倉庫 | ||
|---|---|---|---|
| 専有面積 | 164.78㎡ | 建物構造 | RC |
| 階数 | 4階建 | 所在階 | |
| 築年月(竣工月) | 1981年11月 | 総戸数 | – |
| 駐車場有無 | – | 駐車場料金 | – |
| 土地権利 | – | 管理形態/方式 | – |
| 現況 | 空家 | 取引態様 | 仲介 |
取引条件等
| 引渡し | 即時 | ||
|---|---|---|---|
その他
| 条件等 | – | ||
|---|---|---|---|
| 設備 | – | ||
| 特徴 | – | ||
| リノベーション | – | ||
| リフォーム(水回り) | – | ||
| リフォーム(内装) | – | ||
| リフォーム(外装) | – | ||
| リフォーム(共有部分) | – | ||
| 周辺情報 | コンビニまで: – スーパーまで: – 総合病院まで: – | ||
| 情報公開日 | 2025年5月17日 | ||
| 物件番号 | 90859 | ||
| 建築確認番号 | – | ||
