ボストンビル【大阪府高槻市出丸町6-2 2F 2階】
ボストンビル
APPEAL POINTアピールポイント
(約40坪)飲食店可。保証会社加入要。
- 賃料
- 40.7万円
- 共益費・管理費
- –
- 敷金
- 40.7万円
- 保証金
- –
- 礼金
- 122.1万円
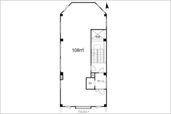
- 専有面積
- 132.25㎡
- 所在地
- 高槻市出丸町6-2 2F
- 建物名
- ボストンビル
- 交通
- 阪急京都本線「高槻市」 徒歩14分
- 最寄バス停
- –
- 情報更新日:
- 2026年05月02日
- 掲載期限日:
- 2026年05月10日
「人型アイコン」を地図上にドラッグすることで『Google Street View』に切り替わります。
※地図上の「対象地」は「日本、〒569-0076 大阪府高槻市出丸町6−2」の場所を指しています。実際の場所ではない場合がございます。詳しくはお問い合わせください。
物件概要
| 種目 | 店舗事務所 | ||
|---|---|---|---|
| 専有面積 | 132.25㎡ | 建物構造 | 鉄骨造 |
| 階数 | 3階建 | 所在階 | 2階 |
| 築年月(竣工月) | 1987年11月 | 総戸数 | – |
| 駐車場有無 | 空無 | 駐車場料金 | – |
| 土地権利 | – | 管理形態/方式 | – |
| 現況 | 空家 | 取引態様 | 仲介 |
取引条件等
| 引渡し | 即時 | ||
|---|---|---|---|
その他
| 条件等 | – | ||
|---|---|---|---|
| 設備 | 都市ガス、下水道 | ||
| 特徴 | 部屋階数(2階以上) | ||
| リノベーション | – | ||
| リフォーム(水回り) | – | ||
| リフォーム(内装) | – | ||
| リフォーム(外装) | – | ||
| リフォーム(共有部分) | – | ||
| 周辺情報 | コンビニまで: – スーパーまで: – 総合病院まで: – | ||
| 情報公開日 | 2024年4月26日 | ||
| 物件番号 | 38665 | ||
