ゴールドプラザビル【兵庫県神戸市中央区加納町4丁目7-4 5F 5階】
ゴールドプラザビル
APPEAL POINTアピールポイント
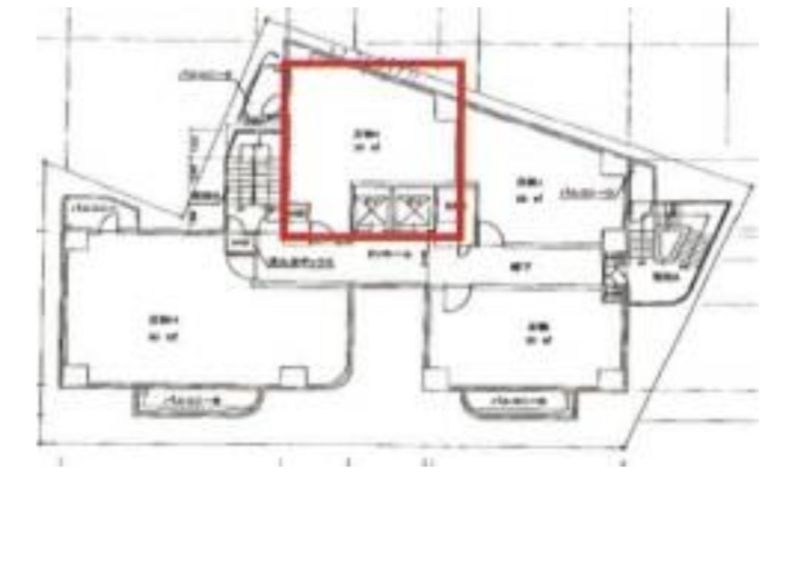
(約12.36坪)ラウンジ・スナック適す。カラオケバー居抜き。保証会社加入要。
- 賃料
- 22万円
- 共益費・管理費
- 38,500円
- 敷金
- –
- 保証金
- 50万円
- 礼金
- –
- 専有面積
- 40.86㎡
- 所在地
- 神戸市中央区加納町4丁目7-4 5F
- 建物名
- ゴールドプラザビル
- 交通
- 阪急神戸本線「神戸三宮」 徒歩4分
- 最寄バス停
- –
- 情報更新日:
- 2026年03月24日
- 掲載期限日:
- 2026年06月08日
「人型アイコン」を地図上にドラッグすることで『Google Street View』に切り替わります。
※地図上の「対象地」は「日本、〒650-0001 兵庫県神戸市中央区中央区中央区加納町4丁目7−4」の場所を指しています。実際の場所ではない場合がございます。詳しくはお問い合わせください。
物件概要
| 種目 | 店舗事務所 | ||
|---|---|---|---|
| 専有面積 | 40.86㎡ | 建物構造 | 鉄骨造 |
| 階数 | 8階建 | 所在階 | 5階 |
| 築年月(竣工月) | 1983年8月 | 総戸数 | – |
| 駐車場有無 | – | 駐車場料金 | – |
| 土地権利 | – | 管理形態/方式 | – |
| 現況 | 空家 | 取引態様 | 仲介 |
取引条件等
| 引渡し | 即時 | ||
|---|---|---|---|
その他
| 条件等 | – | ||
|---|---|---|---|
| 設備 | 給湯、エレベータ、都市ガス、エアコン | ||
| 特徴 | 部屋階数(2階以上) | ||
| リノベーション | – | ||
| リフォーム(水回り) | – | ||
| リフォーム(内装) | – | ||
| リフォーム(外装) | – | ||
| リフォーム(共有部分) | – | ||
| 周辺情報 | コンビニまで: – スーパーまで: – 総合病院まで: – | ||
| 情報公開日 | 2024年4月12日 | ||
| 物件番号 | 36832 | ||
