内本町松林ビル【大阪府大阪市中央区内本町1丁目2-6 6階 6階】
内本町松林ビル
APPEAL POINTアピールポイント
(約27坪)保証会社加入要。
- 賃料
- 17.6万円
- 共益費・管理費
- 66,000円
- 敷金
- 60万円
- 保証金
- –
- 礼金
- –
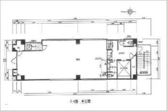
- 専有面積
- 88.36㎡
- 所在地
- 大阪市中央区内本町1丁目2-6 6階
- 建物名
- 内本町松林ビル
- 交通
- Osaka Metro谷町線「谷町四丁目」 徒歩2分
- 最寄バス停
- –
- 情報更新日:
- 2026年04月25日
- 掲載期限日:
- 2026年05月02日
「人型アイコン」を地図上にドラッグすることで『Google Street View』に切り替わります。
※地図上の「対象地」は「〒540-0026 大阪府大阪市中央区内本町1丁目2−6」の場所を指しています。実際の場所ではない場合がございます。詳しくはお問い合わせください。
物件概要
| 種目 | 事務所 | ||
|---|---|---|---|
| 専有面積 | 88.36㎡ | 建物構造 | SRC |
| 階数 | 10階建 | 所在階 | 6階 |
| 築年月(竣工月) | 1992年7月 | 総戸数 | – |
| 駐車場有無 | – | 駐車場料金 | – |
| 土地権利 | – | 管理形態/方式 | – |
| 現況 | – | 取引態様 | 仲介 |
取引条件等
| 引渡し | 即時 | ||
|---|---|---|---|
その他
| 条件等 | – | ||
|---|---|---|---|
| 設備 | – | ||
| 特徴 | – | ||
| リノベーション | – | ||
| リフォーム(水回り) | – | ||
| リフォーム(内装) | – | ||
| リフォーム(外装) | – | ||
| リフォーム(共有部分) | – | ||
| 周辺情報 | コンビニまで: – スーパーまで: – 総合病院まで: – | ||
| 情報公開日 | 2026年4月18日 | ||
| 物件番号 | 137674 | ||
