MH.4『新築』『飲食可能』『一棟貸し可』【大阪府大阪市西区南堀江4丁目12-1 3階】|【テナント情報局】関西最大級の掲載数!事業用賃貸物件を探すなら

MH.4『新築』『飲食可能』『一棟貸し可』【大阪府大阪市西区南堀江4丁目12-1 3階】

MH.4『新築』『飲食可能』『一棟貸し可』

賃料
12万円
共益費・管理費
5,000円
敷金
2ヶ月
保証金
礼金
2ヶ月
専有面積
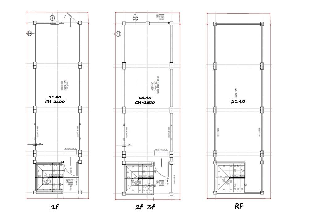
21.4㎡
所在地
大阪市西区南堀江4丁目12-1
建物名
MH.4『新築』『飲食可能』『一棟貸し可』
交通
Osaka Metro千日前線「西長堀」  徒歩6分
最寄バス停
情報更新日:
2026年04月17日
掲載期限日:
2026年05月01日

LINE公式アカウントを友達追加して
カンタンお問い合わせ!

この物件へのお問合せは、
「物件のスクリーンショット画像」または、「所在地」を記載してお送りください!

「人型アイコン」を地図上にドラッグすることで『Google Street View』に切り替わります。

※地図上の「対象地」は「」の場所を指しています。実際の場所ではない場合がございます。詳しくはお問い合わせください。

物件概要

種目 店舗一部
専有面積 21.4㎡ 建物構造 その他
階数 3階建 所在階 3階
築年月(竣工月) 2026年6月 総戸数
駐車場有無 駐車場料金
土地権利 管理形態/方式
現況 取引態様 仲介

取引条件等

引渡し

その他

条件等
設備
特徴
リノベーション
リフォーム(水回り)
リフォーム(内装)
リフォーム(外装)
リフォーム(共有部分)
周辺情報 コンビニまで: –  スーパーまで: –  総合病院まで: –
情報公開日 2026年4月5日
物件番号 135772

LINE公式アカウントを友達追加して
カンタンお問い合わせ!

この物件へのお問合せは、
「物件のスクリーンショット画像」または、「所在地」を記載してお送りください!