本町GTCビル【大阪府大阪市中央区本町4丁目5-4 401 4階】
本町GTCビル
APPEAL POINTアピールポイント
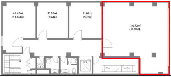
(約34坪)飲食店不可。保証会社加入要。
- 賃料
- 49.5万円
- 共益費・管理費
- –
- 敷金
- 2ヶ月
- 保証金
- –
- 礼金
- 2ヶ月
- 専有面積
- 110.72㎡
- 所在地
- 大阪市中央区本町4丁目5-4 401
- 建物名
- 本町GTCビル
- 交通
- Osaka Metro御堂筋線「本町」 徒歩3分
- 最寄バス停
- –
- 情報更新日:
- 2026年04月23日
- 掲載期限日:
- 2026年05月02日
「人型アイコン」を地図上にドラッグすることで『Google Street View』に切り替わります。
※地図上の「対象地」は「」の場所を指しています。実際の場所ではない場合がございます。詳しくはお問い合わせください。
物件概要
| 種目 | 事務所 | ||
|---|---|---|---|
| 専有面積 | 110.72㎡ | 建物構造 | RC |
| 階数 | 5階建 | 所在階 | 4階 |
| 築年月(竣工月) | 1967年1月 | 総戸数 | – |
| 駐車場有無 | – | 駐車場料金 | – |
| 土地権利 | – | 管理形態/方式 | – |
| 現況 | 賃貸中 | 取引態様 | 仲介 |
取引条件等
| 引渡し | 期日指定 2026年7月上旬 | ||
|---|---|---|---|
その他
| 条件等 | – | ||
|---|---|---|---|
| 設備 | – | ||
| 特徴 | – | ||
| リノベーション | – | ||
| リフォーム(水回り) | – | ||
| リフォーム(内装) | – | ||
| リフォーム(外装) | – | ||
| リフォーム(共有部分) | – | ||
| 周辺情報 | コンビニまで: – スーパーまで: – 総合病院まで: – | ||
| 情報公開日 | 2026年3月28日 | ||
| 物件番号 | 134487 | ||
