HI-REKSビル【京都府京都市下京区四条通寺町西入奈良物町373 7F南 7階】
HI-REKSビル
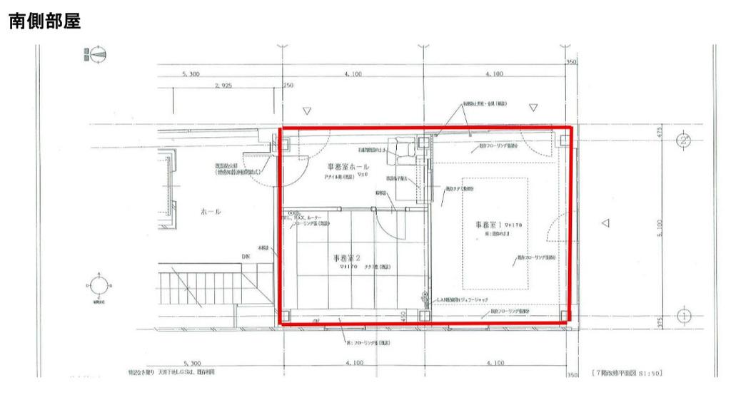
APPEAL POINTアピールポイント
(約18坪)保証会社加入要。
- 賃料
- 33万円
- 共益費・管理費
- 22,000円
- 敷金
- 360万円
- 保証金
- –
- 礼金
- –
- 専有面積
- 58.27㎡
- 所在地
- 京都市下京区四条通寺町西入奈良物町373 7F南
- 建物名
- HI-REKSビル
- 交通
- 阪急京都本線「京都河原町」 徒歩3分
- 最寄バス停
- –
- 情報更新日:
- 2026年04月16日
- 掲載期限日:
- 2026年05月10日
「人型アイコン」を地図上にドラッグすることで『Google Street View』に切り替わります。
※地図上の「対象地」は「〒600-8004 京都府京都市下京区四条通寺町西入奈良物町373」の場所を指しています。実際の場所ではない場合がございます。詳しくはお問い合わせください。
物件概要
| 種目 | 店舗事務所 | ||
|---|---|---|---|
| 専有面積 | 58.27㎡ | 建物構造 | 鉄骨造 |
| 階数 | 7階建 | 所在階 | 7階 |
| 築年月(竣工月) | 1998年11月 | 総戸数 | – |
| 駐車場有無 | 無 | 駐車場料金 | – |
| 土地権利 | – | 管理形態/方式 | – |
| 現況 | 所有者居住中 | 取引態様 | 仲介 |
取引条件等
| 引渡し | 即時 | ||
|---|---|---|---|
その他
| 条件等 | – | ||
|---|---|---|---|
| 設備 | – | ||
| 特徴 | – | ||
| リノベーション | – | ||
| リフォーム(水回り) | – | ||
| リフォーム(内装) | – | ||
| リフォーム(外装) | – | ||
| リフォーム(共有部分) | – | ||
| 周辺情報 | コンビニまで: – スーパーまで: – 総合病院まで: – | ||
| 情報公開日 | 2026年3月18日 | ||
| 物件番号 | 132975 | ||
