旧徳永家住宅改修賃貸物件【大阪府守口市本町2丁目5-38 一棟 1階】
旧徳永家住宅改修賃貸物件
APPEAL POINTアピールポイント
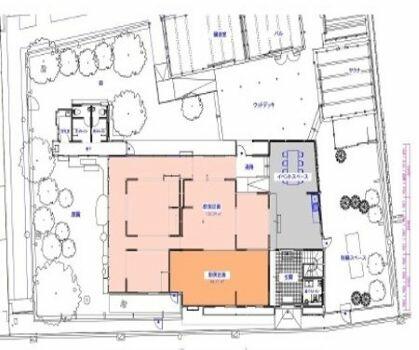
(約41坪)飲食店可。保証会社加入要。
- 賃料
- 44万円
- 共益費・管理費
- 44,000円
- 敷金
- –
- 保証金
- 3ヶ月
- 礼金
- –
- 専有面積
- 134.61㎡
- 所在地
- 守口市本町2丁目5-38 一棟
- 建物名
- 旧徳永家住宅改修賃貸物件
- 交通
- Osaka Metro谷町線「守口」 徒歩2分
- 最寄バス停
- –
- 情報更新日:
- 2026年03月09日
- 掲載期限日:
- 2026年05月10日
「人型アイコン」を地図上にドラッグすることで『Google Street View』に切り替わります。
※地図上の「対象地」は「〒570-0028 大阪府守口市本町2丁目5−38」の場所を指しています。実際の場所ではない場合がございます。詳しくはお問い合わせください。
物件概要
| 種目 | 店舗一部 | ||
|---|---|---|---|
| 専有面積 | 134.61㎡ | 建物構造 | 木造 |
| 階数 | 2階建 | 所在階 | 1階 |
| 築年月(竣工月) | 1974年1月 | 総戸数 | – |
| 駐車場有無 | 無 | 駐車場料金 | – |
| 土地権利 | – | 管理形態/方式 | – |
| 現況 | 空家 | 取引態様 | 仲介 |
取引条件等
| 引渡し | 相談 | ||
|---|---|---|---|
その他
| 条件等 | – | ||
|---|---|---|---|
| 設備 | – | ||
| 特徴 | 定期借家権該当 | ||
| リノベーション | – | ||
| リフォーム(水回り) | – | ||
| リフォーム(内装) | – | ||
| リフォーム(外装) | – | ||
| リフォーム(共有部分) | – | ||
| 周辺情報 | コンビニまで: – スーパーまで: – 総合病院まで: – | ||
| 情報公開日 | 2026年3月5日 | ||
| 物件番号 | 130947 | ||
