サンシステム天六駅前ビル【大阪府大阪市北区本庄東1丁目4-17 5F 5階】
サンシステム天六駅前ビル
APPEAL POINTアピールポイント
(約42.35坪)保証会社加入要。
- 賃料
- 33万円
- 共益費・管理費
- 77,000円
- 敷金
- 2ヶ月
- 保証金
- –
- 礼金
- 2ヶ月
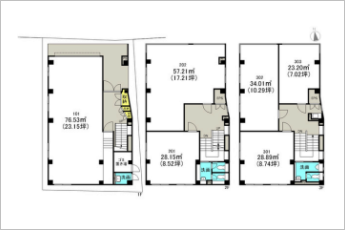
- 専有面積
- 140㎡
- 所在地
- 大阪市北区本庄東1丁目4-17 5F
- 建物名
- サンシステム天六駅前ビル
- 交通
- Osaka Metro谷町線「天神橋筋六丁目」 徒歩1分
- 最寄バス停
- –
- 情報更新日:
- 2026年03月06日
- 掲載期限日:
- 2026年05月01日
「人型アイコン」を地図上にドラッグすることで『Google Street View』に切り替わります。
※地図上の「対象地」は「〒531-0074 大阪府大阪市北区本庄東1丁目4−17」の場所を指しています。実際の場所ではない場合がございます。詳しくはお問い合わせください。
物件概要
| 種目 | 事務所 | ||
|---|---|---|---|
| 専有面積 | 140㎡ | 建物構造 | 鉄骨造 |
| 階数 | 5階建 | 所在階 | 5階 |
| 築年月(竣工月) | 2010年9月 | 総戸数 | – |
| 駐車場有無 | 無 | 駐車場料金 | – |
| 土地権利 | – | 管理形態/方式 | – |
| 現況 | 空家 | 取引態様 | 仲介 |
取引条件等
| 引渡し | 即時 | ||
|---|---|---|---|
その他
| 条件等 | – | ||
|---|---|---|---|
| 設備 | – | ||
| 特徴 | 事務所使用可、部屋階数(2階以上) | ||
| リノベーション | – | ||
| リフォーム(水回り) | – | ||
| リフォーム(内装) | – | ||
| リフォーム(外装) | – | ||
| リフォーム(共有部分) | – | ||
| 周辺情報 | コンビニまで: – スーパーまで: – 総合病院まで: – | ||
| 情報公開日 | 2026年3月5日 | ||
| 物件番号 | 130912 | ||
