テナント2【京都府京都市中京区橘町635-2 1階 1階】
テナント2
APPEAL POINTアピールポイント
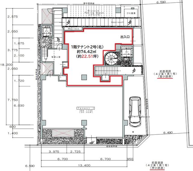
(約23坪)飲食店可。保証会社加入要。
- 賃料
- 57.2万円
- 共益費・管理費
- 22,000円
- 敷金
- 2ヶ月
- 保証金
- –
- 礼金
- 3ヶ月
- 専有面積
- 74.42㎡
- 所在地
- 京都市中京区橘町635-2 1階
- 建物名
- テナント2
- 交通
- 京都地下鉄東西線「京都市役所前」 徒歩5分
- 最寄バス停
- –
- 情報更新日:
- 2026年04月14日
- 掲載期限日:
- 2026年05月10日
「人型アイコン」を地図上にドラッグすることで『Google Street View』に切り替わります。
※地図上の「対象地」は「」の場所を指しています。実際の場所ではない場合がございます。詳しくはお問い合わせください。
物件概要
| 種目 | 店舗事務所 | ||
|---|---|---|---|
| 専有面積 | 74.42㎡ | 建物構造 | RC |
| 階数 | 5階建 | 所在階 | 1階 |
| 築年月(竣工月) | 2026年3月 | 総戸数 | – |
| 駐車場有無 | 空有 | 駐車場料金 | 44,000円 |
| 土地権利 | – | 管理形態/方式 | – |
| 現況 | 空家 | 取引態様 | 仲介 |
取引条件等
| 引渡し | 相談 | ||
|---|---|---|---|
その他
| 条件等 | – | ||
|---|---|---|---|
| 設備 | – | ||
| 特徴 | – | ||
| リノベーション | – | ||
| リフォーム(水回り) | – | ||
| リフォーム(内装) | – | ||
| リフォーム(外装) | – | ||
| リフォーム(共有部分) | – | ||
| 周辺情報 | コンビニまで: – スーパーまで: – 総合病院まで: – | ||
| 情報公開日 | 2026年2月25日 | ||
| 物件番号 | 129808 | ||
