あんずビル【兵庫県尼崎市立花町1丁目7-13 2階 2階】
あんずビル
APPEAL POINTアピールポイント
(約20坪)重飲食店不可。保証会社加入要。
- 賃料
- 18万円
- 共益費・管理費
- 15,000円
- 敷金
- 1ヶ月
- 保証金
- –
- 礼金
- 2ヶ月
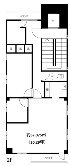
- 専有面積
- 67.07㎡
- 所在地
- 尼崎市立花町1丁目7-13 2階
- 建物名
- あんずビル
- 交通
- JR東海道・山陽本線「立花」 徒歩3分
- 最寄バス停
- –
- 情報更新日:
- 2026年05月01日
- 掲載期限日:
- 2026年05月10日
「人型アイコン」を地図上にドラッグすることで『Google Street View』に切り替わります。
※地図上の「対象地」は「」の場所を指しています。実際の場所ではない場合がございます。詳しくはお問い合わせください。
物件概要
| 種目 | 店舗一部 | ||
|---|---|---|---|
| 専有面積 | 67.07㎡ | 建物構造 | 鉄骨造 |
| 階数 | 3階建 | 所在階 | 2階 |
| 築年月(竣工月) | 2006年10月 | 総戸数 | – |
| 駐車場有無 | 無 | 駐車場料金 | – |
| 土地権利 | – | 管理形態/方式 | – |
| 現況 | 空家 | 取引態様 | 仲介 |
取引条件等
| 引渡し | 相談 | ||
|---|---|---|---|
その他
| 条件等 | – | ||
|---|---|---|---|
| 設備 | – | ||
| 特徴 | – | ||
| リノベーション | – | ||
| リフォーム(水回り) | – | ||
| リフォーム(内装) | – | ||
| リフォーム(外装) | – | ||
| リフォーム(共有部分) | – | ||
| 周辺情報 | コンビニまで: – スーパーまで: – 総合病院まで: – | ||
| 情報公開日 | 2026年2月24日 | ||
| 物件番号 | 129785 | ||
