枚方駅前吉泉ビル【大阪府枚方市新町1丁目8-5 201 2階】|【テナント情報局】関西最大級の掲載数!事業用賃貸物件を探すなら

枚方駅前吉泉ビル【大阪府枚方市新町1丁目8-5 201 2階】

枚方駅前吉泉ビル

賃料
220万円
共益費・管理費
11,000円
敷金
3ヶ月
保証金
礼金
1ヶ月
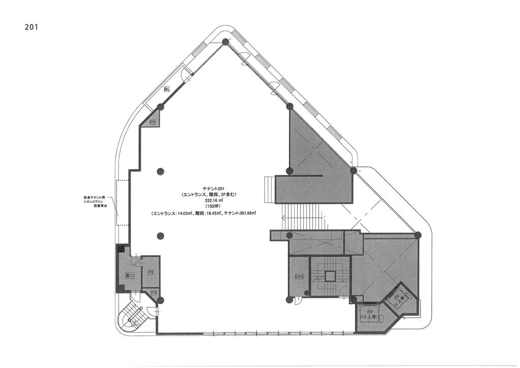
専有面積
322.16㎡
所在地
枚方市新町1丁目8-5  201
建物名
枚方駅前吉泉ビル
交通
京阪本線「枚方市」  徒歩2分
最寄バス停
情報更新日:
2026年04月29日
掲載期限日:
2026年05月10日

LINE公式アカウントを友達追加して
カンタンお問い合わせ!

この物件へのお問合せは、
「物件のスクリーンショット画像」または、「所在地」を記載してお送りください!

「人型アイコン」を地図上にドラッグすることで『Google Street View』に切り替わります。

※地図上の「対象地」は「」の場所を指しています。実際の場所ではない場合がございます。詳しくはお問い合わせください。

物件概要

種目 店舗一部
専有面積 322.16㎡ 建物構造 鉄骨造
階数 10階建 所在階 2階
築年月(竣工月) 1973年10月 総戸数
駐車場有無 空無 駐車場料金
土地権利 管理形態/方式
現況 空家 取引態様 仲介

取引条件等

引渡し 即時

その他

条件等
設備
特徴
リノベーション
リフォーム(水回り)
リフォーム(内装)
リフォーム(外装)
リフォーム(共有部分)
周辺情報 コンビニまで: –  スーパーまで: –  総合病院まで: –
情報公開日 2026年2月23日
物件番号 129687

LINE公式アカウントを友達追加して
カンタンお問い合わせ!

この物件へのお問合せは、
「物件のスクリーンショット画像」または、「所在地」を記載してお送りください!

この物件を見た人の多くは、下記の物件も見ています!