フクヤビル【京都府京都市下京区烏丸通四条下る水銀屋町628-1 1階 1階】
フクヤビル
APPEAL POINTアピールポイント
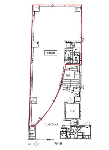
(約28坪)保証会社加入要。
- 賃料
- 76.17万円
- 共益費・管理費
- 91,410円
- 敷金
- 770万円
- 保証金
- –
- 礼金
- –
- 専有面積
- 91.57㎡
- 所在地
- 京都市下京区烏丸通四条下る水銀屋町628-1 1階
- 建物名
- フクヤビル
- 交通
- 京都市営烏丸線「四条」 徒歩1分
- 最寄バス停
- –
- 情報更新日:
- 2026年04月16日
- 掲載期限日:
- 2026年05月09日
「人型アイコン」を地図上にドラッグすることで『Google Street View』に切り替わります。
※地図上の「対象地」は「」の場所を指しています。実際の場所ではない場合がございます。詳しくはお問い合わせください。
物件概要
| 種目 | 店舗一部 | ||
|---|---|---|---|
| 専有面積 | 91.57㎡ | 建物構造 | SRC |
| 階数 | 9階建 | 所在階 | 1階 |
| 築年月(竣工月) | 1990年9月 | 総戸数 | – |
| 駐車場有無 | 無 | 駐車場料金 | – |
| 土地権利 | – | 管理形態/方式 | – |
| 現況 | 賃貸中 | 取引態様 | 仲介 |
取引条件等
| 引渡し | 期日指定 2026年5月上旬 | ||
|---|---|---|---|
その他
| 条件等 | – | ||
|---|---|---|---|
| 設備 | – | ||
| 特徴 | – | ||
| リノベーション | – | ||
| リフォーム(水回り) | – | ||
| リフォーム(内装) | – | ||
| リフォーム(外装) | – | ||
| リフォーム(共有部分) | – | ||
| 周辺情報 | コンビニまで: – スーパーまで: – 総合病院まで: – | ||
| 情報公開日 | 2026年2月22日 | ||
| 物件番号 | 129545 | ||
