洛西口新築テナント【京都府向日市寺戸町七ノ坪105 3】|【テナント情報局】関西最大級の掲載数!事業用賃貸物件を探すなら

洛西口新築テナント【京都府向日市寺戸町七ノ坪105 3】

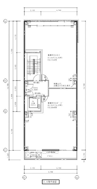
洛西口新築テナント

賃料
24.5万円
共益費・管理費
11,000円
敷金
1ヶ月
保証金
礼金
1ヶ月
専有面積
48.5㎡
所在地
向日市寺戸町七ノ坪105  3
建物名
洛西口新築テナント
交通
最寄バス停
情報更新日:
2026年04月01日
掲載期限日:
2026年05月29日

LINE公式アカウントを友達追加して
カンタンお問い合わせ!

この物件へのお問合せは、
「物件のスクリーンショット画像」または、「所在地」を記載してお送りください!

「人型アイコン」を地図上にドラッグすることで『Google Street View』に切り替わります。

※地図上の「対象地」は「」の場所を指しています。実際の場所ではない場合がございます。詳しくはお問い合わせください。

物件概要

種目 店舗事務所
専有面積 48.5㎡ 建物構造 鉄骨造
階数 所在階
築年月(竣工月) 総戸数
駐車場有無 駐車場料金
土地権利 管理形態/方式
現況 取引態様 仲介

取引条件等

引渡し 相談

その他

条件等
設備
特徴
リノベーション
リフォーム(水回り)
リフォーム(内装)
リフォーム(外装)
リフォーム(共有部分)
周辺情報 コンビニまで: –  スーパーまで: –  総合病院まで: –
情報公開日 2026年2月7日
物件番号 127346

LINE公式アカウントを友達追加して
カンタンお問い合わせ!

この物件へのお問合せは、
「物件のスクリーンショット画像」または、「所在地」を記載してお送りください!