放出栄町商店街 店舗A【大阪府大阪市鶴見区放出東3丁目22-27 1階】|【テナント情報局】関西最大級の掲載数!事業用賃貸物件を探すなら

放出栄町商店街 店舗A【大阪府大阪市鶴見区放出東3丁目22-27 1階】

放出栄町商店街 店舗A

賃料
8.8万円
共益費・管理費
2,000円
敷金
保証金
礼金
24万円
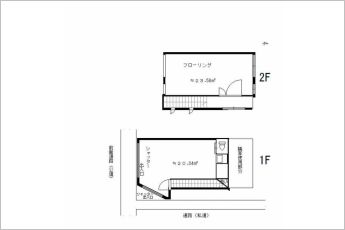
専有面積
46.2㎡
所在地
大阪市鶴見区放出東3丁目22-27
建物名
放出栄町商店街 店舗A
交通
JR片町線(学研都市線)「放出」  徒歩2分
最寄バス停
情報更新日:
2026年04月30日
掲載期限日:
2026年05月10日

LINE公式アカウントを友達追加して
カンタンお問い合わせ!

この物件へのお問合せは、
「物件のスクリーンショット画像」または、「所在地」を記載してお送りください!

「人型アイコン」を地図上にドラッグすることで『Google Street View』に切り替わります。

※地図上の「対象地」は「」の場所を指しています。実際の場所ではない場合がございます。詳しくはお問い合わせください。

物件概要

種目 店舗一部
専有面積 46.2㎡ 建物構造 木造
階数 2階建 所在階 1階
築年月(竣工月) 1960年10月 総戸数
駐車場有無 駐車場料金
土地権利 管理形態/方式
現況 賃貸中 取引態様 仲介

取引条件等

引渡し 相談

その他

条件等
設備
特徴
リノベーション
リフォーム(水回り)
リフォーム(内装)
リフォーム(外装)
リフォーム(共有部分)
周辺情報 コンビニまで: –  スーパーまで: –  総合病院まで: –
情報公開日 2026年2月4日
物件番号 126713

LINE公式アカウントを友達追加して
カンタンお問い合わせ!

この物件へのお問合せは、
「物件のスクリーンショット画像」または、「所在地」を記載してお送りください!