第12新興ビル【大阪府大阪市中央区材木町1番6号 0101 1階】|【テナント情報局】関西最大級の掲載数!事業用賃貸物件を探すなら

第12新興ビル【大阪府大阪市中央区材木町1番6号 0101 1階】

第12新興ビル

賃料
51.79万円
共益費・管理費
43,153円
敷金
150万円
保証金
礼金
110万円
専有面積
129.69㎡
所在地
大阪市中央区材木町1番6号  0101
建物名
第12新興ビル
交通
Osaka Metro中央線「堺筋本町」  徒歩7分
最寄バス停
情報更新日:
2026年05月03日
掲載期限日:
2026年05月11日

LINE公式アカウントを友達追加して
カンタンお問い合わせ!

この物件へのお問合せは、
「物件のスクリーンショット画像」または、「所在地」を記載してお送りください!

「人型アイコン」を地図上にドラッグすることで『Google Street View』に切り替わります。

※地図上の「対象地」は「」の場所を指しています。実際の場所ではない場合がございます。詳しくはお問い合わせください。

物件概要

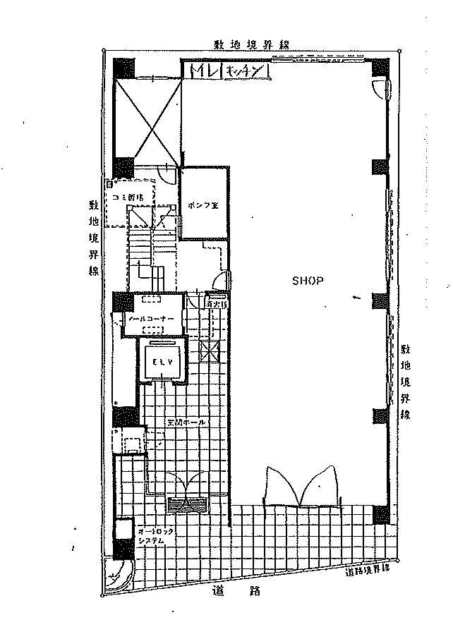
種目 店舗一部
専有面積 129.69㎡ 建物構造 SRC
階数 10階建 所在階 1階
築年月(竣工月) 1986年12月 総戸数
駐車場有無 駐車場料金
土地権利 管理形態/方式
現況 空家 取引態様 仲介

取引条件等

引渡し 期日指定  2026年4月上旬

その他

条件等
設備
特徴
リノベーション
リフォーム(水回り)
リフォーム(内装)
リフォーム(外装)
リフォーム(共有部分)
周辺情報 コンビニまで: –  スーパーまで: –  総合病院まで: –
情報公開日 2026年1月23日
物件番号 124922

LINE公式アカウントを友達追加して
カンタンお問い合わせ!

この物件へのお問合せは、
「物件のスクリーンショット画像」または、「所在地」を記載してお送りください!