JP松屋町駅前ビル【大阪府大阪市中央区松屋町6番14号 6 6階】|【テナント情報局】関西最大級の掲載数!事業用賃貸物件を探すなら

JP松屋町駅前ビル【大阪府大阪市中央区松屋町6番14号 6 6階】

JP松屋町駅前ビル

賃料
22万円
共益費・管理費
敷金
保証金
礼金
44万円
専有面積
55.38㎡
所在地
大阪市中央区松屋町6番14号  6
建物名
JP松屋町駅前ビル
交通
Osaka Metro長堀鶴見緑地線「松屋町」  徒歩1分
最寄バス停
情報更新日:
2026年05月03日
掲載期限日:
2026年05月11日

LINE公式アカウントを友達追加して
カンタンお問い合わせ!

この物件へのお問合せは、
「物件のスクリーンショット画像」または、「所在地」を記載してお送りください!

「人型アイコン」を地図上にドラッグすることで『Google Street View』に切り替わります。

※地図上の「対象地」は「」の場所を指しています。実際の場所ではない場合がございます。詳しくはお問い合わせください。

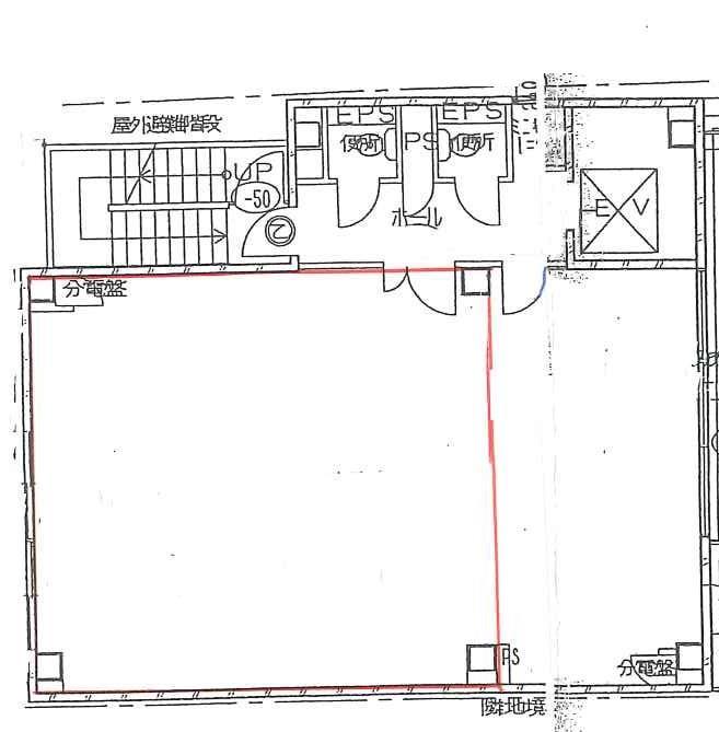
物件概要

種目 事務所
専有面積 55.38㎡ 建物構造 鉄骨造
階数 7階建 所在階 6階
築年月(竣工月) 1997年9月 総戸数
駐車場有無 駐車場料金
土地権利 管理形態/方式
現況 空家 取引態様 仲介

取引条件等

引渡し 即時

その他

条件等
設備
特徴
リノベーション
リフォーム(水回り)
リフォーム(内装)
リフォーム(外装)
リフォーム(共有部分)
周辺情報 コンビニまで: –  スーパーまで: –  総合病院まで: –
情報公開日 2025年9月13日
物件番号 107404

LINE公式アカウントを友達追加して
カンタンお問い合わせ!

この物件へのお問合せは、
「物件のスクリーンショット画像」または、「所在地」を記載してお送りください!