TEL 0120-95-5134
お問い合わせ
お気に入り物件
加盟をご希望の方へ
TOP>人気業態特集詳細
兵庫県の飲食店可能物件を集めました!お問合せお待ちしております!
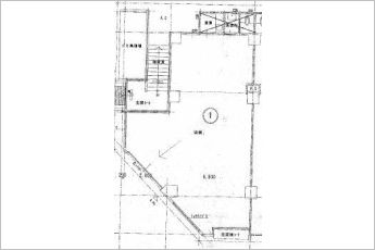
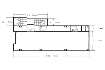
■(約33坪)重飲食店可。保証会社加入要。
賃料: 27.5万円
賃料: 8.8万円
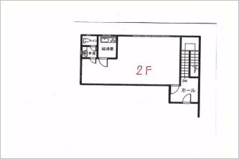
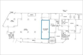
■(約22坪)重飲食店不可。保証会社加入要。
賃料: 28万円
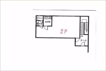
■(約25坪)飲食店可。保証会社加入要。
賃料: 20.79万円
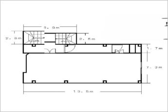
■(約49坪)飲食店可。保証会社加入要。
賃料: 60.5万円
賃料: 45.1万円
■(約10坪)飲食店可。保証会社加入要。
賃料: 21万円
賃料: 38万円
賃料: 8.5万円
賃料: 26.28万円
賃料: 15.4万円
賃料: 13.28万円
■(約13坪)飲食店可。保証会社加入要。
賃料: 21.34万円
■(約15坪)飲食店可。保証会社加入要。
賃料: 24.75万円
賃料: 13.2万円
賃料: 22.73万円
賃料: 27万円
賃料: 24万円
一覧へ戻る